我們經常在幾何畫板繪制圖形的時候會遇到網格線,有的時候需要網格線,可是有的時候網格線卻又很難看,怎么辦呢?下面將詳細介紹顯示和隱藏幾何畫板網格線的方法。
隱藏網格:
方法一:菜單法
單擊菜單欄“繪圖”——“隱藏網格”命令,此時你可以看到網格已經沒有了,是不是很漂亮。

單擊“繪圖”——“隱藏網格”命令隱藏網格線
方法二:快捷鍵法
在鍵盤上面同時按住“Alt+G”鍵,會打開繪圖菜單,在此時你再在鍵盤上面按一下“G”鍵,你會發現,網格隱藏了起來,如下圖所示。
 
 
使用“Alt+G”快捷鍵隱藏網格線
顯示網格:
其實顯示網格和隱藏網格是一樣的操作方法,這里就不再多做贅述。
網格線會因為沒有從大圖中適當“斷開”而影響效果。但使用表格自定義工具繪制的網格,往往因為網格線是迭代的象,不容易在格點上精確構造點。本例介紹一個比較完美的幾何畫板繪制網格點的方案。
具體操作步驟如下:
1.在自定義工具欄中選擇“迷你坐標系”——“石巖簡易坐標系”,繪制一個坐標系。

利用自定義工具繪制一個坐標系
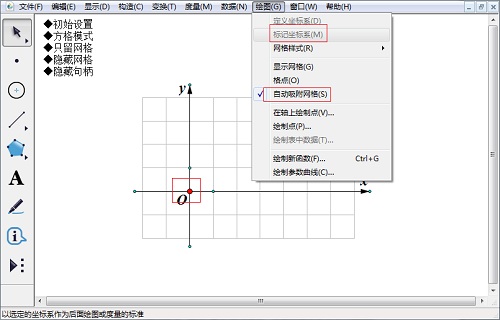
2.只選定原點,選擇“繪圖”——“標記坐標系”和“自動吸附網格”。

選中原點后標記坐標系和吸附網格
3.點擊自定義坐標系菜單的“初始設置”和“只留網格”。

選中原點后標記坐標系和吸附網格
4.使用點工具,在網格上構造點,就能夠精確地繪制在格點上了(下圖中的三角形是選中三個點后構造三角形內部形成的)。

在網格上繪制所需的點
5.點擊“顯示句柄”調整坐標軸控制點,制作合適大小的表格,點坐標系菜單的“隱藏句柄”,完成表格制作。

將坐標軸進行相應的調整以適合需要
提示:如果使用“繪圖”——“繪制點”繪制了格點,拖動“原點”移動表格,繪制的表格和點還會隨網格一起移動。
以上就是小編為大家帶來的幾何畫板顯示和隱藏網格線的設置圖文教程,希望對大家有所幫助,請繼續關注武林網。
相關閱讀:
怎樣在幾何畫板中畫數軸?幾何畫板中畫數軸教程 
幾何畫板制作圓柱體的形成動畫演示方法
新聞熱點
疑難解答